+ Tham gia nhóm Zalo chia sẻ tài liệu
+ Zalo hỗ trợ 0912.07.64.66 bạn cần tìm tài liệu gì nhắn tin zalo này
+ Xem thêm: Thư viện xây dựng VIP
Tác giả: Sưu tầm
Định dạng: pdf / word / excel / cad…
Mã sản phẩm: HSXD24774
Link tải tài liệu:
🔐 Lấy mật khẩu tài liệu cuối bài viết.
Thiết kế mẫu nhà cấp 4 có gác lửng 4×10 được xem là một giải pháp thông minh trong kiến trúc nhà ở khi vừa tăng không gian sử dụng vừa tiết kiệm chi phí xây dựng phù hợp cho gia đình không có nhiều kinh phí.
Là kiến trúc nhà ở được nhiều người quan tâm nên hôm nay AZHOME xin gửi tới mẫu nhà cấp 4 có gác lửng 4×10 phong cách hiện đại, đơn giản nhưng tiện nghi sử dụng với chi phí xây dựng không quá 500 triệu bạn có thể tham khảo.
1. Mẫu nhà cấp 4 có gác lửng 4×10 mái bằng
Mẫu nhà cấp 4 có gác lừng 4×10 mái bằng đơn giản giúp ngôi nhà trở nên vuông vức hơn. Đối với những thiết kế nhà ống hiện nay thì mái bằng được sử dụng nhiều hơn cả.
Phối cảnh mặt tiền mẫu nhà cấp 4 có gác lửng 4×10

Mẫu nhà cấp 4 có gác lửng 4×10 đơn giản tiết kiệm chi phí xây dựng
Phối cảnh mặt tiền mẫu nhà cấp 4 có gác lửng 4×10 phong cách hiện đại tương đối đơn giản chủ yếu tập trung vào không gian nhằm tiết kiệm ngân sách tối đa. Các mảng tường vuông vức, hạn chế về đường nét cùng với mái bằng tạo nên một tổng thể thống nhất hoàn chỉnh.
Bức tường màu xám nhẹ nhàng kết hợp cùng những cửa kính đưa ánh sáng thiên nhiên vào trong tốt nhất nhằm khắc phục được sự hạn chế về diện tích. Ngoài cửa chính thì tầng lửng còn có những ô cửa kính nhỏ đưa ánh sáng từ trên cao xuống cũng như giúp tầng lửng bên trong thoáng không bị ngợp.

Kiến trúc sư đã khéo léo kết hợp thêm thiên nhiên trên tầng lầu cùng khuôn viên đất trống xung quanh nhằm tăng thêm thẩm mỹ cũng như đưa đến bầu không khí trong lành. Hơn thế tường rào bên ngoài nhỏ xinh đồng điệu cùng với công trình.
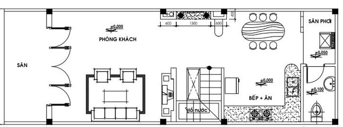
Mặt bằng công năng nhà cấp 4 có gác lửng 4×10

Mặt bằng tầng trệt: Phòng khách, bếp + phòng ăn, WC
Phòng khách được bố trí liền kề cửa chính giúp cho quá trình tiếp khách được thuận tiện, bếp và phòng ăn cũng được kết nối mở chung trong một không gian tạo sự thông thoáng, thuận tiện cho quá trình sinh hoạt.
Thiết kế cầu thang lên gác lửng bên hông nhỏ gọn tối ưu diện tích tối đa cũng như tiết kiệm chi phí xây dựng, phía dưới cầu thang tận dụng bố trí thêm cây xanh đưa thiên vào trong nhà. Máy giặt cũng được đặt để phía dưới gọn gàng. Nhà vệ sinh nhỏ dùng chung cho các thành viên trong gia đình.

Mặt bằng gác lửng: Phòng ngủ
Gác lửng dành cho việc nghỉ ngơi thư giãn với nội thất phòng ngủ được bố trí gọn gàng, ngăn nắp đảm bảo sự thông thoáng, các cửa sổ nhỏ cũng được thiết kế nhằm mang đến sự thông thoáng, hạn chế sự tù bức của gác lửng.
2. Mẫu thiết kế nhà cấp 4 có gác lửng 4×10 mái thái
Mái thái có nhiều ưu điểm về công năng lẫn thẩm mỹ phù hợp với thời tiết khí hậu ở Việt Nam nên được nhiều người yêu chuộng đặc biệt là những thiết kế mẫu nhà cấp 4 có gác lửng thì mái thái còn tạo nên sự thông thoáng, rộng rãi hơn.
Mặt tiền thiết kế nhà cấp 4 có gác lửng mái thái đẹp

Mẫu nhà cấp 4 có gác lửng 4×10 đơn giản tiết kiệm chi phí xây dựng
Mặt tiền mẫu nhà cấp 4 có gác lửng 4×12 vừa đậm nét hiện đại lại có chút truyền thống khi thiết kế mái thái duyên dáng kết hợp cùng những bức tường kính hiện đại cộng hưởng thêm màu nâu làm điểm nhấn đã tạo nên một công trình hoàn hảo giá rẻ ở vùng quê.
Diện tích hạn chế, đây cũng điểm kích thích sự sáng tạo của kiến trúc sư nhằm đưa đến những phương án thông minh để mang đến vẻ đẹp riêng biệt.
Bản vẽ công năng mẫu nhà cấp 4 có gác lửng

Mặt bằng tầng trệt: Phòng khách, bếp + phòng ăn, WC
Không gian sinh hoạt chung được bố trí rộng rãi ở tầng trệt. Đầu tiên phòng khách với những bộ bàn ghế sofa bố trí sát tường gọn gàng, cầu thang vừa đi lên tầng lửng vừa có thể tạo ra sự riêng tư cho khu vực bếp và phòng ăn.
Các nội thất được bố trí gọn gàng đảm bảo sự thông thoáng liên thông với nhau. nhà vệ sinh đường bố trí sau cùng đảm bảo thẩm mỹ, góc sân phơi thông thoáng.
Mặt bằng gác lửng: phòng thờ, phòng làm việc, phòng ngủ rộng rãi và phòng vệ sinh.
Với diện tích hạn chế nên phòng thờ được bố trí nhỏ gọn, góc nhỏ cũng được tận dụng làm không gian làm việc, nhà vệ sinh nhỏ gọn, bên trong các nội thất phòng ngủ đầy đủ tiện nghi cung cấp cho việc thư giãn, nghỉ ngơi được tuyệt vời.
3. Mẫu nhà cấp 4 có gác lửng 40m2 (4×10)
Thiết kế mẫu nhà cấp 4 có gác lửng 40m2 phong cách hiện đại, các đường nét trang trí đơn giản nhưng vẫn đảm bảo sang trọng, không lỗi thời. Kiến trúc sư không ngừng sáng tạo để những ngôi nhà nhỏ trở nên bắt mắt hơn.
Mặt tiền bên ngoài mẫu nhà cấp 4 có gác lửng 4×10

Mẫu nhà cấp 4 có gác lửng 4×10 đơn giản tiết kiệm chi phí xây dựng
Thiết kế mẫu nhà ống 1 tầng có gác lửng hiện đại đơn giản. Mái thái giật cấp ấn tượng cùng màu trắng nhẹ nhàng, khung cửa kính bằng gỗ tạo điểm nhấn góp phần mang đến vẻ đẹp sang trọng.
Công năng nội thất bên trong nhà cấp 4 40m2

Công năng bên trong mẫu nhà cấp 4 có gác lửng 4×10 đầy đủ tiện nghi với phong cách hiện đại. Các nội thất được bố trí gọn gàng, sử dụng màu sắc nhẹ nhàng mang đến không gian thoáng đãng rộng rãi. Diện tích tuy nhỏ nhưng xứng đáng là không gian nghỉ ngơi tuyệt vời .

Bộ bàn ghế sofa màu xanh nhẹ cùng ghế sofa đơn họa tiết ấn tượng, trên tường được trang trí những bức tranh mang đến nét đẹp nghệ thuật cho căn phòng trong khi đó cửa kính đưa ánh sáng thiên nhiên từ bên ngoài vào trong mang lại bầu không khí trong lành.

Kệ tivi bằng gỗ mộc mạc, có thể thấy bức tường ngoài trang trí còn được tận dụng làm nơi lưu trữ tối đa khi kết hợp với những chiếc kệ. Không chiếm diện tích nhưng lại giúp căn phòng trở nên gọn gàng, đẹp và tinh tế hơn cho mẫu nhà cấp 4 có gác lửng 4×10.

Tủ bếp màu trắng được ôm sát tường hài hòa cùng màu sắc của sơn tường, ở giữa được trang trí gạch bông họa tiết làm điểm nhấn vừa giúp cho việc lau chùi vệ sinh dễ dàng.
Bộ bàn ghế ăn bằng gỗ mộc mạc ấn tượng, phía trên được trang trí thêm đèn thả trần, bức tranh cũng như kệ hoa trang trí giúp cho quá trình ăn uống, thư giãn được tốt hơn.
Các mẫu nhà cấp 4 có gác lửng 4×10 đẹp phong cách hiện đại, đơn giản tiết kiệm chi phí xây dựng nhưng vẫn đảm bảo sự thông thoáng bên trong phù hợp cho những gia đình ít thành vên. Thay vì các công năng ở dưới việc có thêm gác lửng sẽ mang đến sự riêng tư hơn nhiều giúp cho các phòng phát huy được vai trò tối đa để nghỉ ngơi
Lưu ý khi thiết kế xây dựng nhà cấp 4 có gác lửng 4×10
Diện tích 4x10m tương đối hạn chế nên để sở hữu một mẫu nhà đẹp, rộng rãi đặc biệt tiết kiệm chi phí khi xây dựng bạn cần lưu ý những điều sau đây.
- Chọn phong cách thiết kế mẫu nhà cấp 4 có gác lừng 4×10 đơn giản, hạn chế về màu sắc cũng như đường nét từ mặt tiền bên ngoài cho đến nội thất để cảm thấy được gần gũi thông thoáng hơn.
- Xác định chức năng không gian cụ thể như tầng trệt bao gồm những phòng gì, gác lửng như thế nào để lên phương án bố trí nội thất sao cho phù hợp tối ưu diện tích một cách tối đa.
- Thiết kế cầu thang lên tầng lửng cần nhỏ gọn, bố trí gọn gàng để không chiếm nhiều diện tích
- Gác lửng nên sử dụng vật liệu chắc chắn, cần thiết kế xây dựng gác lửng với chiều cao, kích thước phù hợp với quy định.
- Thiết kế nội thất tối giản, sử dụng nội thất thông minh cùng màu sắc sáng như màu trắng, màu ghi
Hy vọng qua bài viết này bạn sẽ có thêm ý tưởng thiết kế xây dựng mẫu nhà cấp 4 có gác lửng 4×10 đẹp với công năng sử dụng cao và tiết kiệm chi phí xây dựng. Nếu có nhu cầu thiết kế thi công nhà ở hãy liên hệ tới Azhome qua hotline 0904.87.33.88 để được tư vấn miễn phí nhé !
===> Nếu bạn đang tìm hiểu về các mẫu nhà và cũng muốn tham khảo thêm để chọn báo giá vật liệu và dịch vụ phù hợp cho căn nhà thì có thể xem tại đây::
- Cập Nhật Báo Giá các loại gỗ nguyên liệu Mới Nhất Quý 2/2021
- 99+ Mẫu Giàn phơi thông minh Được Ưa Chuộng Hiện Nay
- Báo giá gia công đồ gỗ Veneer, MFC An Cường, gỗ sồi tự nhiên Ưu Đãi Hấp Dẫn 2021
- [Miễn phí] 40+ Mẫu nhà biệt thự Đẹp Nhất 2021
- Dự toán xây nhà mới nhất [Cập Nhật Quý 2/2021]
- Phần mềm Dự toán xây nhà Online được nhiều người sử dụng
Danh sách khóa học hay mà bạn nên tham gia:
| STT | Danh sách khóa học | Link khóa học |
|---|---|---|
| 1 | Full Kho tài liệu xây dựng 30GB | CHI TIẾT TÀI LIỆU |
| 2 | Thư viện Sketchup khổng lồ 900 Gb | CHI TIẾT TÀI LIỆU |
| 3 | Combo 4 khóa học Sketchup cơ bản và nâng cao | CHI TIẾT TÀI LIỆU |
| 4 | Commbo tài liệu học 80 khóa học REVIT - TELKA - ETAP - SAP - BIM ... | CHI TIẾT TÀI LIỆU |
| 5 | Combo khóa học Autocad cơ bản và nâng cao | CHI TIẾT TÀI LIỆU |
| 6 | Combo 15 khóa học Revit từ cơ bản đến nâng cao | CHI TIẾT TÀI LIỆU |
| 7 | Combo 7 khóa học Photoshop thực chiến từ nền tảng đến chuyên sâu | CHI TIẾT TÀI LIỆU |
| 8 | Combo 8 khóa học tinh học văn phòng từ cơ bản đến nâng cao | CHI TIẾT TÀI LIỆU |
| 9 | Khóa học Etabs - Safe | CHI TIẾT TÀI LIỆU |
| 10 | Khóa học họa viên kiến trúc | CHI TIẾT TÀI LIỆU |
| 11 | Tổng hợp mẫu nhà đẹp năm 2025 | CHI TIẾT TÀI LIỆU |
| 12 | Phần mềm Lập và Quản lý hồ sơ chất lượng AZHOME | CHI TIẾT TÀI LIỆU |
| 13 | Phần mềm Lisp Hỗ trợ thiết kế đường | CHI TIẾT TÀI LIỆU |
| 14 | Phần mềm tiện ích XDAddins Excel PRO | CHI TIẾT TÀI LIỆU |
| 15 | Combo 7 khóa học dự toán – dự thầu – thanh quyết toán giá 199K | CHI TIẾT TÀI LIỆU |
| 16 | Full 9 khóa học thiết kế xây dựng dân dụng – Giá 199K | CHI TIẾT TÀI LIỆU |
🔐 Lấy mật khẩu tài liệu
| STT | Danh sách khóa học | Link khóa học |
|---|---|---|
| 1 | Full Kho tài liệu xây dựng 30GB | CHI TIẾT TÀI LIỆU |
| 2 | Thư viện Sketchup khổng lồ 900 Gb | CHI TIẾT TÀI LIỆU |
| 3 | Combo 4 khóa học Sketchup cơ bản và nâng cao | CHI TIẾT TÀI LIỆU |
| 4 | Commbo tài liệu học 80 khóa học REVIT - TELKA - ETAP - SAP - BIM ... | CHI TIẾT TÀI LIỆU |
| 5 | Combo khóa học Autocad cơ bản và nâng cao | CHI TIẾT TÀI LIỆU |
| 6 | Combo 15 khóa học Revit từ cơ bản đến nâng cao | CHI TIẾT TÀI LIỆU |
| 7 | Combo 7 khóa học Photoshop thực chiến từ nền tảng đến chuyên sâu | CHI TIẾT TÀI LIỆU |
| 8 | Combo 8 khóa học tinh học văn phòng từ cơ bản đến nâng cao | CHI TIẾT TÀI LIỆU |
| 9 | Khóa học Etabs - Safe | CHI TIẾT TÀI LIỆU |
| 10 | Khóa học họa viên kiến trúc | CHI TIẾT TÀI LIỆU |
| 11 | Tổng hợp mẫu nhà đẹp năm 2025 | CHI TIẾT TÀI LIỆU |
| 12 | Phần mềm Lập và Quản lý hồ sơ chất lượng AZHOME | CHI TIẾT TÀI LIỆU |
| 13 | Phần mềm Lisp Hỗ trợ thiết kế đường | CHI TIẾT TÀI LIỆU |
| 14 | Phần mềm tiện ích XDAddins Excel PRO | CHI TIẾT TÀI LIỆU |
| 14 | Combo 7 khóa học dự toán – dự thầu – thanh quyết toán giá 199K | CHI TIẾT TÀI LIỆU |
| 14 | Full 9 khóa học thiết kế xây dựng dân dụng – Giá 199K | CHI TIẾT TÀI LIỆU |
Bạn không biết Tải Tài Liệu như thế nào ? 👉 Xem Cách Tải 👈



